Den Überblick über Modelländerungen zu behalten, kann enorm schwierig sein. Vor allem in Branchen mit langen Lieferketten, wo an großen Projekten viele Zulieferer und Konstruktionsfirmen beteiligt sind.
Den Überblick über Modelländerungen zu behalten, kann enorm schwierig sein. Vor allem in Branchen mit langen Lieferketten, wo an großen Projekten viele Zulieferer und Konstruktionsfirmen beteiligt sind.
Dennoch müssen die Änderungswünsche der Kunden überprüft und dokumentiert werden.
CATIA V5 Modelle einfach vergleichen und Abweichungen erkennen
Wenn sich bei einer großen CAD-Zeichnung (Computer-Aided Design) irgendeine Anmerkung ändert, gilt es, den Überblick zu behalten. Ist selbst bei einem lückenlosen Dokumentationsprozess wirklich gewährleistet, dass jede noch so kleine Änderung erkannt wird? Oder muss man sich ganz auf die menschliche Interaktion verlassen?
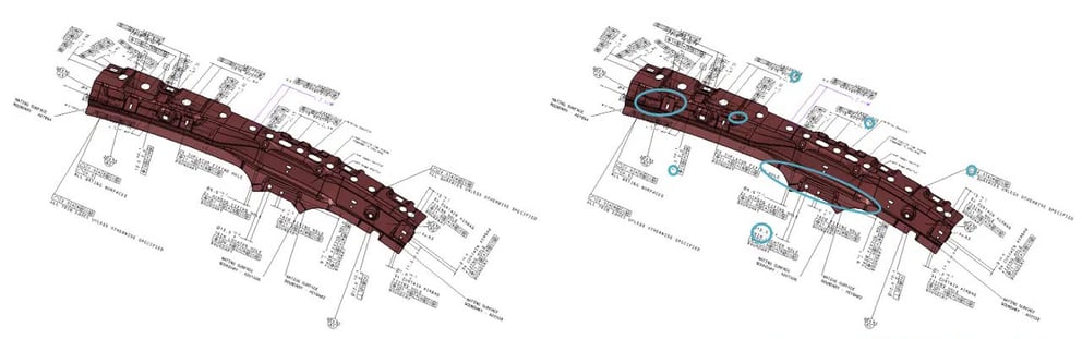
Sie haben als Kind doch bestimmt auch das Suchspiel “ Findet die Fehler“ gespielt? Probieren Sie es mal damit.
Haben Sie alle 10 Unterschiede gefunden? Toll gemacht! Nun versuchen Sie das Gleiche auch mal im folgenden Beispiel?

Das Problem ist, dass Sie sich außer auf ein paar Overlay-Funktionen Ihres CAD-Systems und eine – vermutlich gut dokumentierte – Änderungsanfrage Ihres Konstruktionspartners fast ausschließlich auf Ihre Augen verlassen müssen. Und wenn Sie nun wegen eines geringfügigen Fehlers ein Gerät oder einen Bauteilsatz völlig überarbeiten oder sogar nachfertigen müssen? Sollte man nicht besser genau wissen, ob man etwas neu konstruieren muss?
Vielleicht hat die Konstruktionsänderung Ihres Entwicklungspartners ja gar keine Auswirkungen auf Ihre eigene Konstruktion? Wäre es da nicht besser, wenn Sie mit einer einfachen Prüfung in CATIA V5 checken könnten, ob eine Nacharbeit überhaupt erforderlich ist und wo denn eigentlich genau etwas geändert wurde?
Exakt für diesen Fall wurde xCompare entwickelt.
xCompare ist eine feature-basierte Vergleichssoftware, die alle Änderungen an einem Teil, einem Produkt oder einer Zeichnung aufspürt, indem sie jedes einzelne Feature in CATIA vergleicht: Sie erkennt Veränderungen von Geometrien, Abmessungen, Farben, Toleranzen und Beschriftungen.
Änderungsberichte erstellen in CATIA V5
So mancher von Ihnen wird Änderungen an Dokumenten in irgendeiner Form melden müssen. Oft müssen Sie dazu Screenshots von größeren Änderungen aufnehmen, sie mit Hilfe von Textverarbeitungsprogrammen beschreiben, PDFs erstellen und diese in Ihrem PLM (Product Lifecycle Management) System speichern oder mit Ihrem Projektpartner oder Kunden teilen. xCompare kann Ihnen dabei eine große Hilfe sein, denn es ermöglicht Ihnen den direkten Zugriff auf die jeweiligen Informationen über automatisch generierte Berichte. Bei allen Änderungen macht xCompare Screenshots und erstellt daraus einen HTML-basierten Bericht inklusive Informationen zu den Abweichungen.
Zusätzlich können Sie mit xCompare einen 3D-Report erstellen, mit dem Sie Ihr 3D-Modell einschließlich aller gefundenen Änderungen auch mit Nicht-CAD-Anwendern teilen können, und zwar in deren Webbrowser.
Nach unserer Erfahrung …
Wir haben xCompare in Zusammenarbeit mit Ingenieuren und Konstrukteuren entwickelt, damit Sie mehr Zeit für das haben, was Sie am besten können. Entwickeln Sie Ihre Produkte mit xCompare schneller, indem Sie Fehler eliminieren und Entwicklungszeiten verkürzen.
Advanced Simulation
Engineering